分譲中
ルミエールタウン三宅
- 土地価格
- 1,665.2万円~2,595.2万円
土地・建物の合計金額:3,390万円~4,320万円
近鉄南大阪線「河内松原」歩22分。
河内松原駅~大阪阿部野橋駅まで準急で約9分で、大阪市内へのアクセスが◎。
「三宅ジャンクション」も近くにあり、阪神高速や近畿自動車道、南阪奈道路などが交差しているため、車での移動もスムーズです♪
全10区画!
■セミオーダー住宅ですので、ご希望の間取りでマイホームを建てることが可能です。
■嬉しい標準設備がたくさん!自分好みのマイホーム造りが可能です。
Concept分譲地のコンセプト
周辺は閑静な住宅街です。「セブンパーク天美」や「スポーツパークまつばら」などの新しい施設も充実。近隣には公園や緑地も多く、のびのびと過ごせる環境です。 そんな住環境に合うよう、街区内道路も広々5m、また通り抜けのできない街区計画としています。平坦な地形とバリアフリーな道路設計で、防犯面、安全面でも安心の生活をお過ごしいただけます! 『安心・快適・ゆとり』がそろう、家族みんなのための住まいです。


Characteristic分譲地の特徴
-
- Characteristic01
- 全10区画の分譲地。自由設計可能です!それぞれのご家族に合った理想のマイホームをご提案させていただきます。土地の広さについても約28坪~約40坪と幅広く、ご要望に沿った間取りを実現していただけます。

-
- Characteristic02
- 周辺は閑静な住宅街です!三宅小学校まで徒歩4分、サンプラザ三宅店まで徒歩7分と近く、セブンパークやスポーツパークまつばらなどの施設も充実! 近隣には公園や緑地も多く、のびのびと過ごせる環境です。

-
- Characteristic03
- 大阪市内へのアクセスがよく、堺市内などへのお車利用も便利。また、給食費無償化や医療費補助の拡充など、子育て支援制度も充実。交通利便、生活環境、子育てなど、多方面で魅力的な住環境です。





Blocks Of Land区画

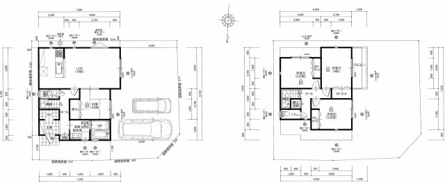
Floor Plan参考間取り
- 土地面積:
- 132.36㎡
- 建物面積:
- 92.56㎡
土地・建物の合計金額:4320万円

※上記プランは一例です。プランはお客様が自由に決定できます。
※この土地は、土地売買契約締結後3か月以内に、弊社と建物の建築請負契約を締結することを条件に販売します。この期間内に建築請負契約が締結されなかった場合は、土地売買契約は白紙となり、受領した手付金等の金銭は全てお返しします。
Access Mapマップ
Information周辺情報
Overview分譲地概要
- 価格
- 1,665.2万円~2,595.2万円
- 総区画数
- 10区画
- 土地面積/坪数
- 92.25㎡~132.36㎡/27.9坪~40.03坪
- 道路
- -
- 開発面積
- -
- 地目
- 宅地
- 用途地域
- 第一種住居
- 建ぺい率
- 60%
- 容積率
- 200%
- 取扱会社 /
取引対応(売主) - 丸三住宅株式会社/売主
- 設備
- 都市ガス
- 公営水道
- 公共下水
- 電気有
- 備考
- 別途外構費70万円
■モデルハウス■
同仕様で建築されたモデルハウスがご見学いただけます!
大きなシューズクロークや吹き抜け、パントリーなどご参考にしていただける工夫もたくさん☆ぜひこの機会に見に来てください!
【売地】物件番号:94167354
情報更新日:2026年02月08日 次回更新予定日:2026年02月21日


Company会社概要



丸三住宅株式会社
- 住所
- 〒580-0026
大阪府松原市天美我堂7丁目434
- 交通
- 地下鉄御堂筋線 北花田駅 徒歩10分
- 営業時間
- 9:00~19:00
- 定休日
- 火曜日 水曜日
- フリーダイヤル
- 0120-86-0303
- tel
- 072-334-8122
- info@03j.net
- 代表者名
- 吉村英夫
- 免許番号
- 国土交通大臣 (5) 第6276号
Listその他分譲地
-
ルミエールタウン三宅
- 土地価格
- 1,665.2万円~2,595.2万円
- 土地・建物
合計金額 - 3,390万円~4,320万円
- 総区画数
- 10区画
- 住所
- 大阪府松原市三宅中4丁目
- 最寄駅
- 近鉄南大阪線「河内松原」駅 徒歩22分
近鉄南大阪線「河内松原」歩22分。
河内松原駅~大阪阿部野橋駅まで準急で約9分で、大阪市内へのアクセスが◎。
「三宅ジャンクション」も近くにあり、阪神高速や近畿自動車道、南阪奈道路などが交差しているため、車での移動もスムーズです♪
全10区画!
■セミオーダー住宅ですので、ご希望の間取りでマイホームを建てることが可能です。
■嬉しい標準設備がたくさん!自分好みのマイホーム造りが可能です。 -
ルミエールタウン浜寺
- 土地価格
- 2,375.2万円~2,725.2万円
- 土地・建物
合計金額 - 4,100万円~4,450万円
- 総区画数
- 4区画
- 住所
- 大阪府堺市西区浜寺船尾町西4丁
- 最寄駅
- 阪堺電軌阪堺線「船尾」駅 徒歩12分
<南海本線「諏訪ノ森」駅まで徒歩15分 阪堺線「船尾」駅まで徒歩12分 >
周辺は落ち着いた住宅街が広がるエリアで、都会の喧騒から離れた静かな環境が魅力です。ファミリー層やシニア世代も多く、地域住民同士の交流も盛んで安心して住める環境が整っています♪ -
ルミエールタウン天美パート1
- 土地価格
- 1,485.2万円~1,825.2万円
- 土地・建物
合計金額 - 3,210万円~3,550万円
- 総区画数
- 21区画
- 住所
- 大阪府松原市天美北8丁目
- 最寄駅
- 近鉄南大阪線「河内天美」駅 徒歩16分
【総区画21区画の分譲地 近鉄南大阪線 河内天美駅16分】
便利な立地にありながら、開放感のある落ち着いた環境でお過ごし頂けます!
月々8万円台のお支払いでご購入可能です♪
セブンパークもすぐそば!
-
ルミエールタウン天美パート2
- 土地価格
- 1,205.2万円~1,255.2万円
- 土地・建物
合計金額 - 2,930万円~2,980万円
- 総区画数
- 3区画
- 住所
- 大阪府松原市天美北8丁目
- 最寄駅
- 近鉄南大阪線「河内天美」駅 徒歩19分
~近鉄南大阪線「矢田駅」徒歩16分、開発が進む天美エリアでの分譲です~
理想のマイホームをご提案します!
月々7万円台でのお支払いも可能です!
■セミオーダー住宅ですので、ご希望の間取りでマイホームを建てることが可能です♪
■嬉しい標準設備がたくさん!自分好みのカスタマイズのマイホーム造りができます☆
■近鉄南大阪線「矢田駅」徒歩16分!近鉄南大阪線「河内天美駅」徒歩19分! -
ルミエールタウン高見の里3期
- 土地価格
- 2,255.2万円
- 土地・建物
合計金額 - 3980万円
- 総区画数
- 3区画
- 住所
- 大阪府松原市高見の里1丁目5-8
- 最寄駅
- 近鉄南大阪線「高見ノ里」駅 徒歩6分
【高見の里駅まで徒歩6分、デイリーカナートまで徒歩4分】
●〇全邸南向きの分譲地です!最終1区画となりました!土地広46坪です〇●
セミオーダー住宅・ルミエールタウン高見の里3期!
◆◇自由設計可能♪◇◆
2階建、土地広、開放感のある分譲地です。理想のマイホームをお作りいただけます!充実の標準設備も☆
快適な間取りをご提案させていただきます。












































