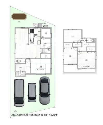
おすすめの駅 河内天美駅 / 河内松原駅 / 初芝駅 / 北野田駅 / 高見ノ里駅 / 河内山本駅 / 八尾駅 / 近鉄八尾駅 / 萩原天神駅 / 加美駅 1件 新着順 安い順 高い順 おすすめ順 住所ごと順 建物面積の広い順 土地面積の広い順 築年数が新しい順 中古一戸建 堺市南区檜尾 堺市南区檜尾 太陽光発電 駐車3台可能 1,980万円 - / 93.96㎡ / 4SLDK /築18年 /2階建 南海電鉄泉北線「和泉中央」駅 徒歩40分 駐車2台可オール電化リフォーム済収納豊富システムキッチンカウンターキッチン 浴室環境も良好な1坪以上のゆったりとした空間となっています。3口コンロが付いているので、同時にたくさん料理できるので毎日忙しい人におすすめです。お財布にも優しい、1,980万円の物件となっています。中古の戸建て物件は、経済的なメリットが大きいのが特徴です。素敵な一戸建ては、暮らしをより豊かにしてくれるでしょう。堺市南区の光明池付近に強い当社でなら、きっと素敵な一戸建てが見つかります。 和泉中央の掲載物件の価格相場 1R ~ 1K 1DK ~ 1LDK 2K ~ 2LDK 3K ~ 3LDK 4K ~ 4LDK以上 価格相場 - - - - 1980万円 空室件数 - - - - 1室 1
浴室環境も良好な1坪以上のゆったりとした空間となっています。3口コンロが付いているので、同時にたくさん料理できるので毎日忙しい人におすすめです。お財布にも優しい、1,980万円の物件となっています。中古の戸建て物件は、経済的なメリットが大きいのが特徴です。素敵な一戸建ては、暮らしをより豊かにしてくれるでしょう。堺市南区の光明池付近に強い当社でなら、きっと素敵な一戸建てが見つかります。